162 Leadership Drive, Brampton

Scroll to Content

Details

Welcome to Credit Valley Neighbourhood Living! This nearly 4,000 sq. ft. executive home is perfectly situated on a premium ravine lot with a walkout basement, offering privacy, nature, and endless living space.Designed for both comfort and flexibility, the home features 4+1 bedrooms and 5 bathrooms, along with a large finished basement that includes an additional bedroom, full bathroom, spacious kitchen, family room, and plenty of storage ideal for extended family, entertaining, or a private retreat.The main floor boasts soaring 9-ft ceilings, a bright open-concept layout, and is perfect for both everyday living and gatherings. Recent updates include a renovated kitchen with newer finishes, sleek quartz countertops, modern appliances, updated light fixtures, and fresh paint throughout, creating a modern and move-in ready space.This home has been meticulously cared for by the original owners and offers thoughtful conveniences such as upper-level laundry and an underground lawn sprinkler system. For those who love the outdoors, enjoy three large balconies with stunning ravine views the perfect setting for relaxing or entertaining.Located in the highly sought-after Valley neighbourhood in Brampton, this home is close to top-rated schools, shopping, parks, and everyday amenities. A rare find combining space, flexibility, and location, this property is the perfect fit for larger families or those who love to entertain.Move-in ready and waiting for its next beautiful family to call it home.

  • 4 Bedrooms
  • 5 Bathrooms
  • 2,700 Sq/ft
  • 6 Parking Spots
  • Built in 2013
  • MLS: W12383553

Images

Videos

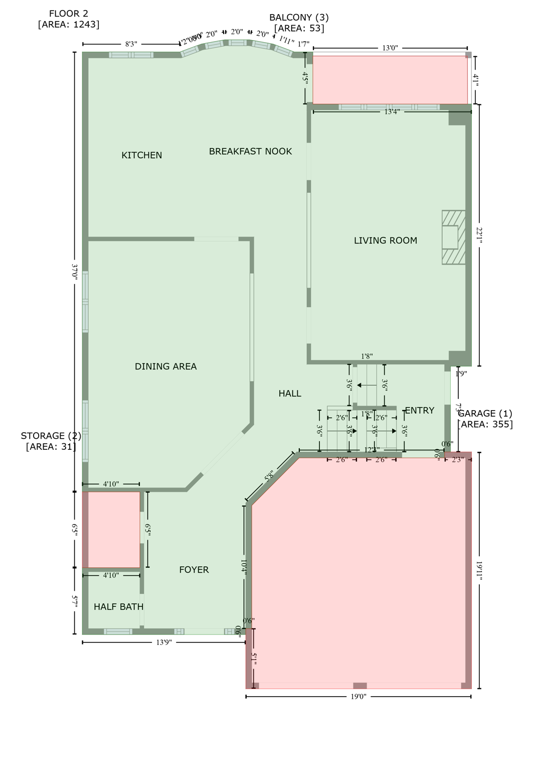
Floor Plans