49 Johnson Crescent, Georgetown, ON L7G 6C9
Toggle Navigation
Images
Videos
Floor Plans
Map
49 Johnson Crescent
Georgetown, ON L7G 6C9
Scroll to Content
Images
Slideshow
Photo Grid
Hide
Previous
Next
Show more
Videos
49 Johnson Cres, Georgetown_Andrea Florian_H_V2 #1
49 Johnson Cres, Georgetown_Andrea Florian_REEL_BRANDED #1
49 Johnson Cres, Georgetown_Andrea Florian_REEL_UB #1
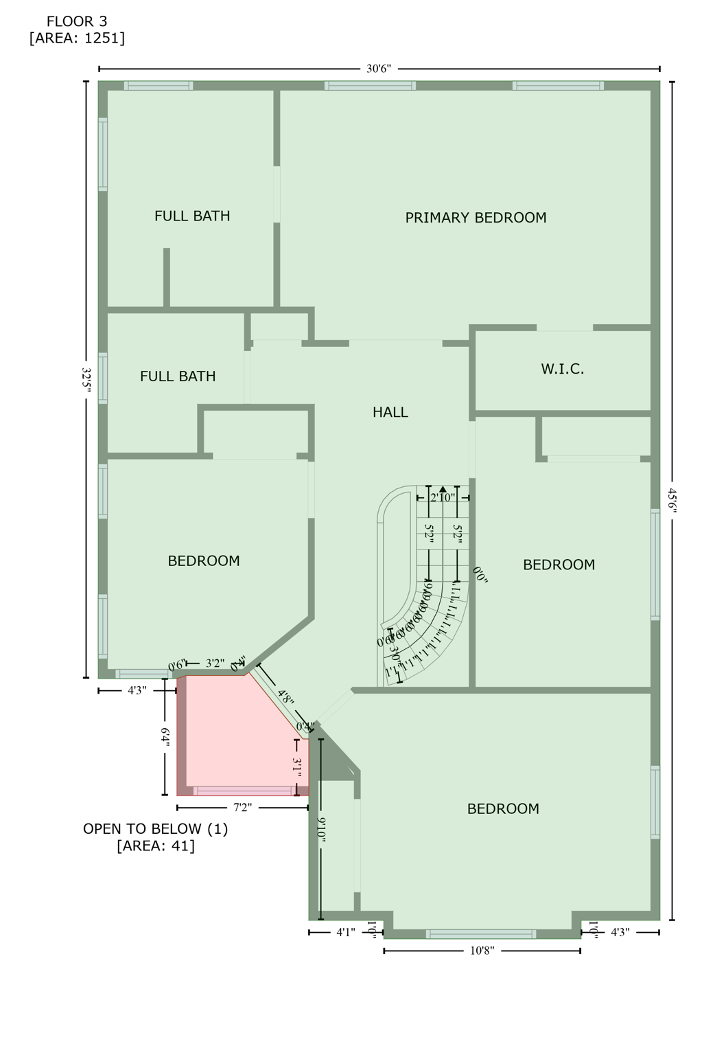
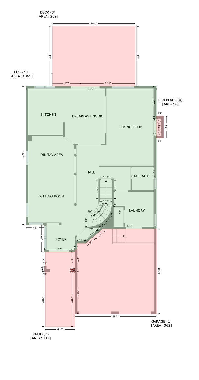
Floor Plans
Slideshow
Photo Grid
Hide
Previous
Next